Menu

First Floor Offices, 54 Lowther Street, Carlisle

Carlisle, CA3 8DP

Walton Goodland

agency@waltongoodland.com 01228 514 199
First Floor Offices, 54 Lowther Street, Carlisle
First Floor Offices, 54 Lowther Street, Carlisle
First Floor Offices, 54 Lowther Street, Carlisle
First Floor Offices, 54 Lowther Street, Carlisle
First Floor Offices, 54 Lowther Street, Carlisle
First Floor Offices, 54 Lowther Street, Carlisle

VISIBLE UPPER FLOOR OFFICE SPACE FRONTING LOWTHER STREET AND VICTORIA PLACE

  • PROPERTY FRONTS BUSY PRINCIPAL TRAFFIC ROUTE THROUGH CITY CENTRE AT TRAFFIC LIGHTS TO VICTORIA PLACE
  • EXCELLENT SECONDARY TOWN CENTRE LOCATION CLOSE TO MAIN PEDESTRIAN CORE AND OPPOSITE THE LANES SHOPPING CENTRE
  • PAY AND DISPLAY PARKING ALONGSIDE ACCESS TO PUBLIC TRANSPORT CLOSE-BY
  • ALTERNATIVE USES CONSIDERED, SUBJECT TO PLANNING

Location

Lowther Street offers strong visibility in one of Carlisle’s key central locations, and provides easy access to nearby shops, transport links via Carlisle's train and bus station, and city amenities.

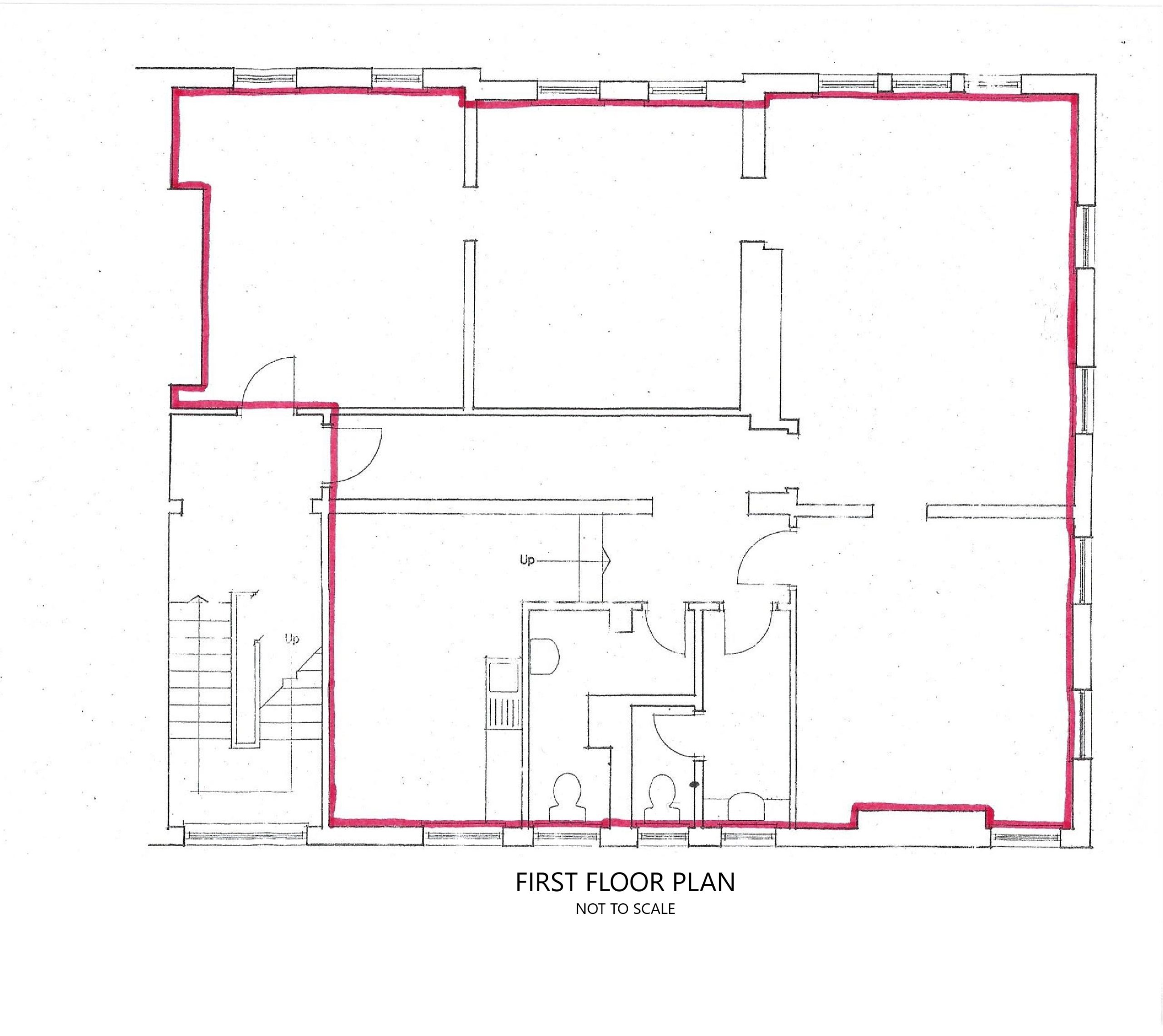
Floor Plans & EPC

DESCRIPTION

First floor office space within prominently located building with return frontage to Lowther Street and Victoria Place.

LOCATION

Lowther Street offers strong visibility in one of Carlisle’s key central locations, and provides easy access to nearby shops, transport links via Carlisle’s train and bus station, and city amenities.

RATEABLE VALUE

Offices £7,200 (2023 Listing)

Offices £7,600 (Draft 2026 Listing)

Interested parties should make their own enquiries of the Valuation Office Agency at Www.voa.gov.uk.

Please note as of 1 April 2017 if this is your only commercial premises then no business rates will be payable, subject to status.

ENERGY PERFORMANCE CERTIFICATE (EPC)

Rating C67

VAT

All rents and outgoings are quoted exclusive of but may beliable to VAT.

We recommend that prospective tenants establish the VAT implications before entering into any agreement.

SERVICES

Mains electricity, water and drainage are connected to the property

ACCOMMODATION

The subject property comprises the following approximate areas:

FIRST FLOOR

Offices 899 sq. ft. (84 sq. m.)

Kitchen 162 sq. ft. (15 sq.m.) stainless steel single drainage sink unit with base cupboards.

Toilets 2 WC and 2 WHB

RENT / LEASE

£7,500 per annum, on internal repairing and insuring terms for a term of years to be agreed.

A service charge is payable in addition to the rent in respect of the internal and external common areas.

VIEWINGS

Please contact Walton Goodland.

Arrange a viewing

  • This field is for validation purposes and should be left unchanged.

Last updated: 24th February 2026 - 3:17 pm